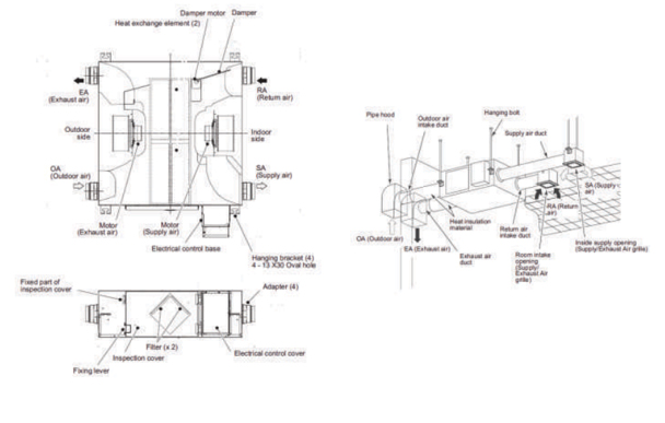
AIR TO AIR HEAT EXCHANGER

Discover true efficiency in heat exchangers with this indoor unit by Toshiba. Designed to pre-condition air while reducing the incoming load and lowering the installation area, enjoy airflows of up to 2,000 m3/h with a sound pressure level as low as 20 dB for select settings.

Features

  • Reduces incoming load and lowers the installation area
  • Air flow of 250 m3/h to 2000 m3/h
  • Sound pressure as low as 20 DB

SPECIFICATIONS

CONTROLS & ACCESSORIES